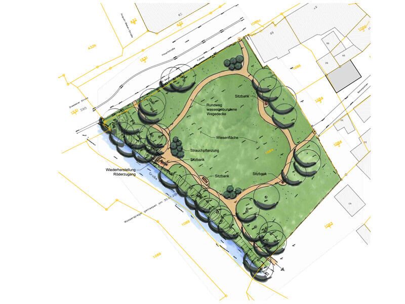
Fördergebietskonzept „Grünes Band“ Radeberg

Auftraggeber:
Große Kreisstadt Radeberg

Projektlaufzeit:
2017

Leistungen:

  • Erfassung der Ausgangssituation sowie der Rahmenbedingungen Bewertung der Bestandserfassung
  • Erarbeitung von Zielen und Maßnahmen
  • Erarbeitung einer Kosten- und Finanzierungsübersicht
  • Erstellung Fördermittelantrag für Bund-Länder-Programm „Zukunft Stadtgrün“
« Zurück