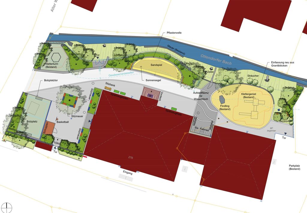
Sanierung Außenanlagen Grundschule Oberottendorf
Auftraggeber:
Stadt Neustadt in Sachsen
Projektlaufzeit:
2015 – 2017
Leistungen:
- Leistungsphasen 1 bis 9 gemäß HOAI
Auftraggeber:
Stadt Neustadt in Sachsen
Projektlaufzeit:
2015 – 2017
Leistungen:
- Leistungsphasen 1 bis 9 gemäß HOAI